AFFARIDEA.COM AFFARIDEA.COM
Italiano
1700 m2
Caratteristiche principali
Codice
ID3779-sito-ven-n
Prezzo
Riservato
Classe
VA
Locali
1
Altre caratteristiche e accessori
Stato Immobile
Come da Origini
Grado
Medio
Panorama
Vista Aperta
Totale Piani
Uno
Riscaldamento
No
Destinazione
Commerciale
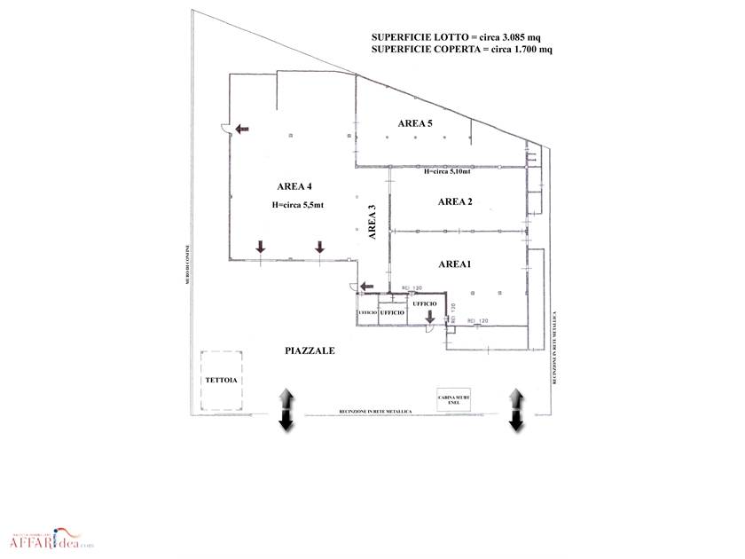
CESENA - TORRE DEL MORO. Area commerciale-artigianale di circa 3085 mq dove trova collocazione un CAPANNONE di circa 1700mq con uffici e un grande piazzale.
La sua posizione è ottima grazie alla vicinanza di un centinaio di metri dalla via Emilia, E45 e dalla secante, oltre al centro commerciale in zona.
Stato immobile: L'immobile originario risale al 1959 poi in una fase suvìccessiva è stata costruita l'area 4.
Il lotto del terreno è di circa 3085 mq, con Indice di fabbricabilità 0,60, mentre la Superfice coperta attuale è di circa 1700 mq.
Note Tecniche: Dal PRG sono previsti gli USI = U1/1 (Abitazioni singole e collettive, pensioni e affittacamere, residence, nidi d'infanzia, turismo ricettivo rurale), U2/1 (Alberghi, motel, centro congressi, centri benesseri), U3/1 (Esercizi di vicinato fino a 250mq di Sv), U3/2 (Medio-piccole strutture di vendita da 250 mq a 1500 mq di Sv, di cui alimentare e non alimentare), U3/5 (Pubblici esercizi attrezzature culturali e sedi istituzionali, con esclusione dei locali per lo spettacolo e lo svago), U3/6 (Terziario diffuso, attrezzature sportive e artigianato di servizio come uffici e studi professionali, sportelli bancari, servizi alla persona, servizi all'industria, e sedi rappresentative di quartiere, ricerca, ecc), U3/7 (Commercio all'ingrosso), U3/8 (Discoteche, attrezzature per lo spettacolo e per la musica), U3/9 (Complessi direzionali, attrezzature socio-sanitarie cioè edifici pubblici e privati prevalentemente destinati a tali attività).
Classe energetica: In fase di valutazione.
Le informazioni del presente annuncio sono indicativi e non costituiscono elemento contrattuale.
Per info 335-8305229. Rif.(ID3779)
Possibilità di AFFITTO.
via Emilia Ponente 1, Cesena (FC)
Cookie preference